Toggle Side Panel
black•box beta
  • Gruppen
  • Support
    • FAQ
  • Veranstaltungen
  • Log In
Weitere Optionen
    Anmelden Registrieren
    • Gruppen
    • Support
      • FAQ
    • Veranstaltungen
    • Log In
    Close search
      • Profilbild von Thomas Kalkus-Promitzer

        Thomas Kalkus-Promitzer veröffentlichte etwas Neues

        vor 2 Monaten (bearbeitet)

        Gar nicht so einfach!

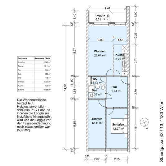
        Tja, wir haben versucht, unsere Wohnung in 1180 Wien zu vermieten, und sind damit kläglich gescheitert. Super Lage, Miete ortsüblich, im unteren Segment, trotzdem keinen passenden Interessenten gefunden. https://wien.orf.at/stories/3342469/

        wien.orf.at

        Wohnungsmangel verschärft sich

        Die Zahl der Baubewilligungen stark geschrumpft, die Zahl der Fertigstellungen stark gesunken: Der Wohnbau in Wien erreicht einen Tiefststand, zeigt der „Erste Wiener Wohnungsmarktbericht 2026“ von BUWOG und EHL.

        5 Kommentare
        • Profilbild von Michael Eisenriegler
          Michael Eisenriegler

          Wow. Wo wohnen die Leute dann?

          vor 2 Monaten
          • Profilbild von Marcel Kneuer
            Marcel Kneuer

            Noch frei? Ich höre regelmäßig von Menschen, die eine Wohnung im 18.suchen.

            vor 2 Monaten
            • Profilbild von Thomas Kalkus-Promitzer
              Thomas Kalkus-Promitzer

              @MarcelK Ja, noch zu haben.

              Foto verschieben nach...

              Keine Alben gefunden. Bitte Album erstellen und auswählen.

              Alben
              Abbrechen Erstellen
              Neues Album erstellen Abbrechen Verschieben
              google maps
              staudgasse - Bild # 1 +2 Weitere Fotos
              staudgasse - Bild # 4
              Staudgasse43-13_Grundriss_.pdf
              vor 2 Monaten
              • Profilbild von Marcel Kneuer
                Marcel Kneuer

                @Tom Verrätst du auch einen Preis? Geht auch als PM

                vor 2 Monaten
                • Profilbild von Thomas Kalkus-Promitzer
                  Thomas Kalkus-Promitzer

                  @MarcelK €1000;- warm.

                  vor 2 Monaten
        • Öffentlich
        • Alle Mitglieder
        • Meine Kontakte
        • Nur ich
        • Öffentlich
        • Alle Mitglieder
        • Meine Kontakte
        • Nur ich
        • Öffentlich
        • Alle Mitglieder
        • Meine Kontakte
        • Nur ich

        Kürzlich Aktive Mitglieder

        Profilbild von Cornelia Breuß
        Profilbild von Fritz Danko
        Profilbild von Martin Müller
        Profilbild von Daniela
        Profilbild von Konrad Promitzer
        Profilbild von Daniel Breuss
        Profilbild von Georg Kraml
        Profilbild von Thomas Kalkus-Promitzer
        Profilbild von Marion Breitschopf
        Profilbild von Claus Tieber
        Alle ansehen
        © 2026 MediaClan G.m.b.H. | Impressum | Regeln und AGB | Datenschutzerklärung
        black•box beta
        Einwilligung verwalten
        Um dir ein optimales Erlebnis zu bieten, verwenden wir Technologien wie Cookies, um Geräteinformationen zu speichern und/oder darauf zuzugreifen. Wenn du diesen Technologien zustimmst, können wir Daten wie das Surfverhalten oder eindeutige IDs auf dieser Website verarbeiten. Wenn du deine Einwilligung nicht erteilst oder zurückziehst, können bestimmte Merkmale und Funktionen beeinträchtigt werden.
        Funktional Immer aktiv
        Die technische Speicherung oder der Zugang ist unbedingt erforderlich für den rechtmäßigen Zweck, die Nutzung eines bestimmten Dienstes zu ermöglichen, der vom Teilnehmer oder Nutzer ausdrücklich gewünscht wird, oder für den alleinigen Zweck, die Übertragung einer Nachricht über ein elektronisches Kommunikationsnetz durchzuführen.
        Präferenzen
        Die technische Speicherung oder der Zugriff ist für den rechtmäßigen Zweck der Speicherung von Präferenzen erforderlich, die nicht vom Abonnenten oder Benutzer angefordert wurden.
        Statistiken
        Die technische Speicherung oder der Zugriff, der ausschließlich zu statistischen Zwecken erfolgt. Die technische Speicherung oder der Zugriff, der ausschließlich zu anonymen statistischen Zwecken verwendet wird. Ohne eine Vorladung, die freiwillige Zustimmung deines Internetdienstanbieters oder zusätzliche Aufzeichnungen von Dritten können die zu diesem Zweck gespeicherten oder abgerufenen Informationen allein in der Regel nicht dazu verwendet werden, dich zu identifizieren.
        Embedding
        User•innen der black•box können externe Inhalte von anderen Plattformen (z.B. Youtube) einbetten ("embedden"). Wenn du nicht einwilligst, werden Cookies dieser Plattformen, sowie ein möglicher Datentransfer dorthin, von uns unterbunden. Allerdings ist es möglich, dass dann manche Beiträge nicht korrekt dargestellt werden oder gar nicht funktionieren.
        • Optionen verwalten
        • Dienste verwalten
        • Verwalten von {vendor_count}-Lieferanten
        • Lese mehr über diese Zwecke
        Einstellungen ansehen
        • {title}
        • {title}
        • {title}

        Melden:

        Es gab ein Problem beim Melden dieses Beitrags.

        Enthält anstößige bzw. potenziell verstörende Inhalte
        Belästigung oder Mobbing
        Enthält beleidigende oder herabwürdigende Inhalte
        Enthält irreführende oder falsche Informationen
        Enthält Spam, Falschinformationen oder mögliche Schadsoftware

        Mitglied blocken?

        Bitte bestätige, dass du dieses Mitglied blocken möchtest.

        Sie werden nicht mehr in der Lage sein:

        • Gesperrte Beiträge des Mitglieds sehen
        • Dieses Mitglied in Beiträgen erwähnen
        • Dieses Mitglied in Gruppen einladen
        • Nachricht an dieses Mitglied
        • Dieses Mitglied als Kontakt hinzufügen

        Bitte beachten Sie: Mit dieser Aktion wird dieses Mitglied auch aus Ihren Verbindungen entfernt und ein Bericht an den Website-Administrator gesendet. Bitte geben Sie dem Vorgang einige Minuten Zeit.

        Melden:

        Sie haben dies bereits gemeldet .

        Create a post

        Als Link teilen